Перегляньте відео нижче, щоб дізнатися, як встановити наш сайт як веб-програму на головному екрані.
Замітка: This feature may not be available in some browsers.

вот именно, что готовлю постоянно.... Сначала как-то не подумала об этом, захотелось студию... а вот теперь не знаю, что делать...
Вы холостяк?Может кому интересно, это наша кухня где мы пока временно живем. Кстати жутко не удобная, чисто холостяцкий вариант.

смотря сколько Вы готовите. в принципе, мощной вытяжки хватить должно. правда, если жарить рыбу, то тут наверное ни одна вытяжка не спасет, запах все равно будет. просто хорошая вытяжка быстрее уберет запах после жарки.
100%
Кухня-студия - вариант для тех, кто дома практически не готовит.
Ну, или для тех, кто любит запах еды по всей квартире. Вытяжка особо не спасет, проверено. "Кухонная" пыль - она особенная, жирная. Будет у вас не только на кухне.
100%
Кухня-студия - вариант для тех, кто дома практически не готовит.
Ну, или для тех, кто любит запах еды по всей квартире. Вытяжка особо не спасет, проверено. "Кухонная" пыль - она особенная, жирная. Будет у вас не только на кухне.
Не холостякВы холостяк?
Как Вы относитесь к обоям с рисунком в виде квадратиков (увидел на фото #973)?
просто приходится жить в такой пока идет ремонт, сами видите жить в той невозможно.Планчик есть только без мебели, не особо умею это делать, рисую плохонько.

смотрите . Меня Ваша критика никак не цепляет![]()
рабочая поверхность на 60 см, а вытяжка похоже на 90см? Разность в размерах не портит при реальном обозрении кухни?
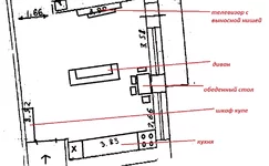
Вот набросала(как умею) планчик расстановки мебели, ее будет по минимуму хочется простора.
мне нравится)))Ждала 2 месяца пока изготовят\установят... и дождалась

Переглянути вкладення 13341860Вот набросала(как умею) планчик расстановки мебели, ее будет по минимуму хочется простора.
Я бы обеденный стол ставил с тыльной стороны дивана. Там он смотрится более гармонично, пользоваться удобнее, пространство вокруг просторнее, задняя стенка дивана закрыта, сидеть за столом и смотреть телик удобнее и пр.
Согласна, кухня очень красивая, светлая, приятная глазу и наверное удобная, но барная стойка на ее фоне смотрится немного тяжеловато, темная столешница и темный низ, хотя со стороны кухни вроде бы нормально, а саму стилистику комнаты не видно может и впишется.мне нравится)))
я бы только барную стойку немного не так сделала
Стрелка внизу слева - это вход?
1,66 - там что? Проход, или стена?