Змінюй хід війни! Допомагай ЗСУ!

Юридические консультации on-line

  • Автор теми Автор теми Алёша
  • Дата створення Дата створення
⚠ Тільки зареєстровані користувачі бачать весь контент та не бачать рекламу.

К этому перечню добавлю, что если покупку объекта недвижимости либо продажу объекта недвижимости, находящегося в общей совместной собственности супругов совершает один из супругов, то второй супруг должен дать письменное согласие на сделку. Помимо паспортов мужа и жены должны быть идентификационные коды и свидетельство об их браке;
если жилой дом или хотя бы его часть принадлежит несовершеннолетнему ребенку, то помимо присутствия при заключении сделки его родителей должно быть получено разрешение органа опеки.

Спасибо за ответ, значит с 2011 года ничего не изменилось? А как нужна ли оценка недвижимости с точки зрения рыночной стоимости - или уже отменили?

А также не выдают "-Справка кадастрового бюро об отсутствии отягощений на земельный участок (обтяження и обмеження)" - у них какие то проблемы с программным обеспечением, может кто-нибудь знает когда начнут выдавать?
 
ст. 130 куап

Добрый день! Сегодня ночью муж попался пьяным за рулём. Составили протокол, он ничего не подписывал - от освидетельствование отказ в присутствии двух свидетелей- так записано в протоколе (свидетели приехали ихние). Он ничего не подписал. Машину забрали на штраф стоянку - сказали утром забрать. Когда пришёл забирать ему сотрудник ГАИ сказал - 3,5грн+40 часов работ или 5 тыс.грн и вообще ничего не будет и до суда не доводим. Есть ли смысл заплатить или лучше в суд?? Какие перспективы там ожидают (очень боюсь лишения прав). Или лучше заплатить 5штук и не парится?
 
Вопрос о пенсии. Женщине 50 лет, может пойти на пенсию выслугу лет и так же можно оформить 2 группу инвалидности. Как лучше поступить для большего расчета пенсии? Оформлять ли группу инвалидности или лучше пойти на пенсию по выслуге лет? Или и то и другое? Спасибо.

В зависимости от группы инвалидности. Ведь эта категория пользуется дополнительными льготами.
 
Добрый день! Сегодня ночью муж попался пьяным за рулём. Составили протокол, он ничего не подписывал - от освидетельствование отказ в присутствии двух свидетелей- так записано в протоколе (свидетели приехали ихние). Он ничего не подписал. Машину забрали на штраф стоянку - сказали утром забрать. Когда пришёл забирать ему сотрудник ГАИ сказал - 3,5грн+40 часов работ или 5 тыс.грн и вообще ничего не будет и до суда не доводим. Есть ли смысл заплатить или лучше в суд?? Какие перспективы там ожидают (очень боюсь лишения прав). Или лучше заплатить 5штук и не парится?

⚠ Тільки зареєстровані користувачі бачать весь контент та не бачать рекламу.

Ст.130 ч.1
 
Останнє редагування модератором:
есть однокомнатная квартира, ее дали родителям когда они работали в жеке, т.е она была служебная...после ухода родителей из жека квартиру хотели забрать,но мама подала в суд и есть судовое решение оставить квартиру родителям.....суть вопроса в том что папа давно выписан, а я хотела прописаться к маме чтобы в дальнейшем ее приватизировать, но в жеке приписывать не хотят требуя какой то ордер на квартиру???где его взять??? и как получить??
 
добрый день
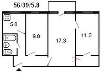
подскажите сколько будет стоить узаконить перепланировку и как это лучше сделать? Дом 5 этажная хрущевка планировка на рис хотелось бы вырезать дверь там где перечеркнуто крассным. Зтаж 5
Проект дома 1-464 xrush-for.ру/khrushhevka-seriya-doma-1-464/
в этом проекте все стены несущие.
 

Вкладення

  • hruschevka.webp
    hruschevka.webp
    9.2 КБ · Перегляди: 71
есть однокомнатная квартира, ее дали родителям когда они работали в жеке, т.е она была служебная...после ухода родителей из жека квартиру хотели забрать,но мама подала в суд и есть судовое решение оставить квартиру родителям.....суть вопроса в том что папа давно выписан, а я хотела прописаться к маме чтобы в дальнейшем ее приватизировать, но в жеке приписывать не хотят требуя какой то ордер на квартиру???где его взять??? и как получить??

Ордер Вам должны были выдать при поселении в эту квартиру...

добрый день
подскажите сколько будет стоить узаконить перепланировку и как это лучше сделать? Дом 5 этажная хрущевка планировка на рис хотелось бы вырезать дверь там где перечеркнуто крассным. Зтаж 5
Проект дома 1-464 xrush-for.ру/khrushhevka-seriya-doma-1-464/
в этом проекте все стены несущие.

В несущей стене невозможно узаконить такой проём. Либо узаконить по факту
 
Ордер Вам должны были выдать при поселении в эту квартиру.

может его и выдали, но мама к сожалению не помнит был он или нет....а у паспортистки в жеке, где он должен находиться его нет"!!!!
 
Добрый день! Сегодня ночью муж попался пьяным за рулём. Составили протокол, он ничего не подписывал - от освидетельствование отказ в присутствии двух свидетелей- так записано в протоколе (свидетели приехали ихние). Он ничего не подписал. Машину забрали на штраф стоянку - сказали утром забрать. Когда пришёл забирать ему сотрудник ГАИ сказал - 3,5грн+40 часов работ или 5 тыс.грн и вообще ничего не будет и до суда не доводим. Есть ли смысл заплатить или лучше в суд?? Какие перспективы там ожидают (очень боюсь лишения прав). Или лучше заплатить 5штук и не парится?
Судя по тому, сколько глупостей наделал ваш муж, он был не просто пьяный, а пьяный в дупель. И перспективы в суде самые мрачные. Похоже, он годик поездит на велосипеде.
 
Добрый день. Ситуация такова... У моего отца(я внебрачный ребенок) есть дом. Живет он там с бывшей женой, дочерью, зятем и внучкой. С женой они официально разведены. Отец был хозяином дома, теперь жена подает на раздел имущества. Дом приватизирован( занималась приватизацией жена, и на момент приватизации в доме были прописаны он, жена , дочь, зять). Вопрос состоит в том, как при разделе имущества будут делить дом? Будут делить дом на всех, тех кто был прописан на момент приватизации или только между супругами? Какую часть он получит? 1/2 или 1/4 ?
 
Добрый день. Ситуация такова... У моего отца(я внебрачный ребенок) есть дом. Живет он там с бывшей женой, дочерью, зятем и внучкой. С женой они официально разведены. Отец был хозяином дома, теперь жена подает на раздел имущества. Дом приватизирован( занималась приватизацией жена, и на момент приватизации в доме были прописаны он, жена , дочь, зять). Вопрос состоит в том, как при разделе имущества будут делить дом? Будут делить дом на всех, тех кто был прописан на момент приватизации или только между супругами? Какую часть он получит? 1/2 или 1/4 ?

Для начала определитесь, как были распределены доли сособственников после приватизии.
 
Проблема в том, что он не знает, так как все документы у жены...
 
так как мы можем вам сказать как будет происходить раздел и что он получит в итоге.

смотрите три варианта, приватизировали на жену. при разделе получит 1/2.
приватизировали на двоих. делить не чего, так как это поделено. в итоге 1/2.
приватизировали на четверых, делить тоже не чего уже поделено в итоге 1/4.
 
Приватизированное имущество является личной собственностью и разделу не подлежит.(если только приватизация не пришлась на период 2011-2012 годов, да и то вопрос спорный)
 
Добрый день! Подскажите пожалуйста, маме (хозяйка,квартира приватизирована) пришло уведомление с юстиции по вопросу задолженности за отопление (2000 грн.),
каждый месяц по возможности погашает (по 200-300 грн.)...
Написано, что будет арест на имущество, явиться куда-то до такого то числа, либо приставы с милицей приходят...вечером скину бумагу...
Есть ли такой закон? Могут ли в принудительном порядке "вломиться" и забрать бытовую технику? Какие варианты? Или это меры предупредительные?
Заранее благодарен
 
суд был? мама в юстицию ходила?
 
Подскажите, для заключения договора дарения нужна ли оценка недвижимости или только для купли-продажи? Раньше вроде бы не нужна была, но может что-то изменилось за последние месяцы... Спасибо.
 
Подскажите, для заключения договора дарения нужна ли оценка недвижимости или только для купли-продажи? Раньше вроде бы не нужна была, но может что-то изменилось за последние месяцы... Спасибо.

Какую именно недвижимость продаете?
 
дарим квартиру изолированную
 
Назад
Зверху Знизу