Перегляньте відео нижче, щоб дізнатися, як встановити наш сайт як веб-програму на головному екрані.
Замітка: This feature may not be available in some browsers.

. Если вы в курсе - сколько они нынче стоят, чтоб хоть знать, за сколько его можно предлагать?Победос, фото в студию...

Отлично
А как сделал автопереворот? Говорят на рынке есть моторчики специальные и систему не сложно сделать... Просто у меня спрашивают инкубаторы с автопереворотом постоянно, а мне некогда этим заниматься...
Че это? Далеко в деревне?

Панятна )) Тогда ждем...Недалеко. Фотоаппарата нету. Как де-нить позычу, так и сфотографирую![]()
Я же говорю, говно, а не инкубатор... Самое первое, что ты должен сделать, это нафик выбросить, ну или в другое какое место, штатный терморегулятор... Потом едишь на "Барабан" и покупаешь ТРТ 1000 Днепропетровский за 60грн. и несколько термометров Полтавских по 6грн. и будет всьо Ок...Valentin_K пятерочка!!очень понравился инкубатор. Купил буквально пару месяцов назад своим родителям РЯбушку или Наседку (точно не помню) на 130 яиц типа .с ручным переворотом. Короче фигня это птнопластовая))Первый раз вылупмлось пару гусят из 60ти яиц, а второй раз 6сть((
Посоветуйте как можно его улучшить??

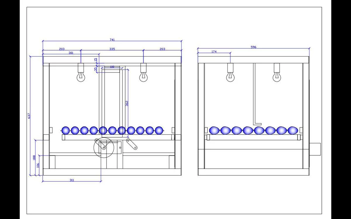
Понятно, просто мне тоже нужно такое дело...автопереворот сделал с помощью электропривода Belimo от вентустановки. Он крутится туда-обратно на 90 градусов и рычагом двигает поддон по мебельным шариковым направляющим. над поддоном ставится съемный сепаратор (решетка) которая удерживает яйца на месте заставляя их котиться по поддону. Привод приводится в движение подачей напряжения от 24-часового китайского таймера. Можно хоть через каждые 15 минут поворачивать, но я через 4 часа ставлю.
Влажности там быть высокой не должно - 50-60% для ДВП совсем не страшно. у тестя лет 20 уже подобному инкубатору, так он гусей выращивает - постоянно яйца брызгает водой, и то ничего.
В следующем году поменяю терморегулятор. Этот хоть и довольно точный, но периодичнось клацания реле меня достала. Куплю безрелейный.
Valentin_K пятерочка!!очень понравился инкубатор. Купил буквально пару месяцов назад своим родителям РЯбушку или Наседку (точно не помню) на 130 яиц типа .с ручным переворотом. Короче фигня это птнопластовая))Первый раз вылупмлось пару гусят из 60ти яиц, а второй раз 6сть((
Посоветуйте как можно его улучшить??
У меня такойПосоветуйте нормальный надежный регулятор температуры для инкубатора. Мой то ли харьковский, то ли китайский на третьей закладке издох, при этом испортив 9 десятков яиц и пару литров моей крови.