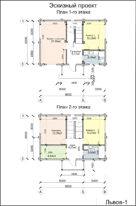
Планировка ничё так, вполне. Попробуйте трубы от внешних стен перенести вовнутрь, поближе к коньку. Заодно и на отделке и утеплении труб сэкономите.
Ну и лестницу покрутите, желат-но высоту ступеньки делать 15-16см.
Архитектора случайно не Дима зовут?
Ну и лестницу покрутите, желат-но высоту ступеньки делать 15-16см.
Архитектора случайно не Дима зовут?

