Информация о 16-этажке

  • Автор теми Автор теми maestro.09
  • Дата створення Дата створення
Да ладно вам, в квартире 4 розетка в зале с соседской кухней точно одной дырой сделана.

Вряд ли, так как между соседской кухней и комнатой две стены, между ними пространство - вентиляция, я соседей по тамбуру воообще не слышу. Я говорю о 3-ке с квадратным холлом
 
Подниму тему.
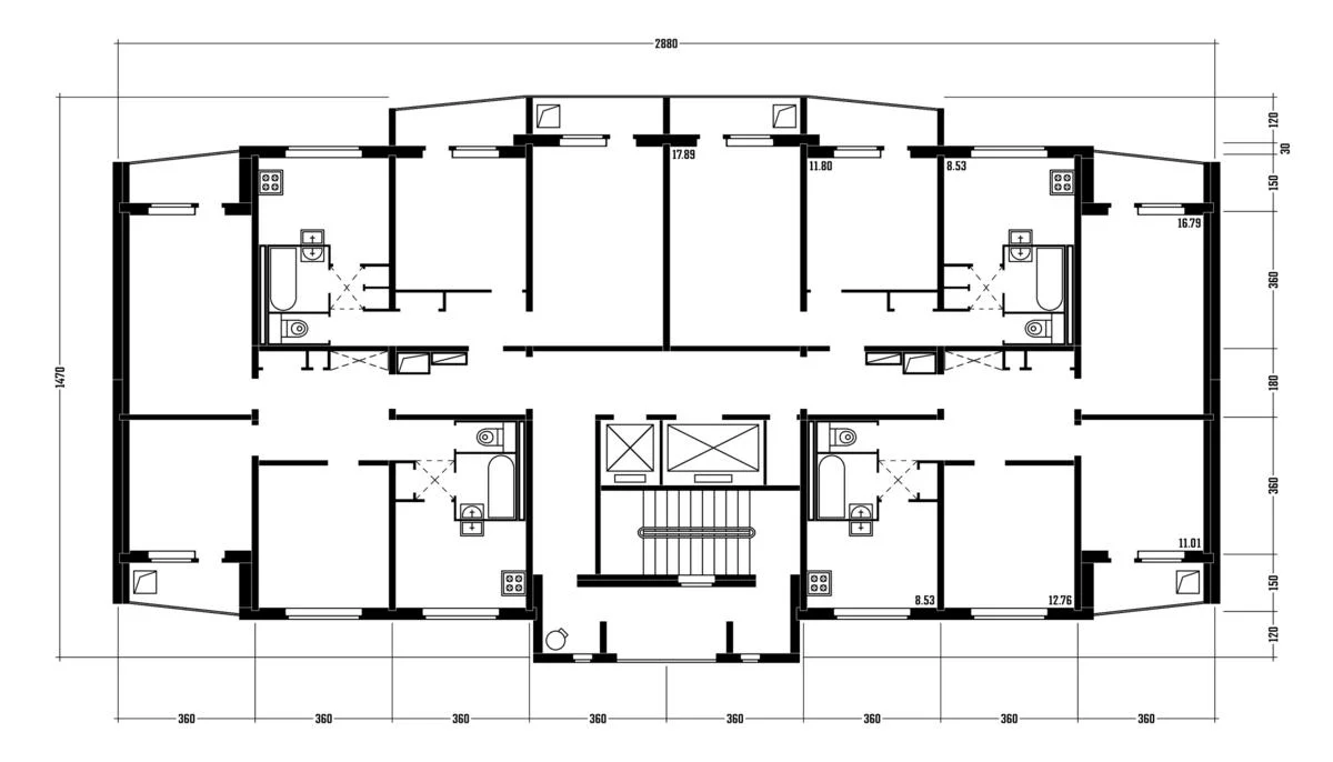
16ти этажка такая же как у автора. В двухкомнатной решил поставить канальный вентилятор прямо в воздуховод вытяжки. Вытяжка из ванной уходит вверх. Проход в канал -щель сантиметров 10 на 2. Начал расширять до отверстия 10 сантиметров в диаметре. Сразу куча арматуры, есть довольно толстая. Теперь думаю, несущая это стена или нет. Можно арматуру перерубить? Вроде это не кабинки стенка, а следующая за ней. Стенка на картинке между розовой ванной и зелёной большой комнатой.
 

Вкладення

  • attachment.webp
    attachment.webp
    39.5 КБ · Перегляди: 1008
Думаю, что за полгода ответ уже опоздал, но, где-то на просторах интернета, я видел фотки, где ребята полностью разбивали сантехкабину, может они были бы информативные, но найти не могу.

Меня вот тут мучает другой вопрос. Кто-нибудь знает какая толщина перекрытий в этих домах? Мне чисто из интереса, потому как уже много кто говорил в этой теме источник шума - соседи сверху и снизу.
 
Меня вот тут мучает другой вопрос. Кто-нибудь знает какая толщина перекрытий в этих домах? Мне чисто из интереса, потому как уже много кто говорил в этой теме источник шума - соседи сверху и снизу.
При любой толщине, в стандартных панельках источник шума соседи. Шумы, особенно ударные передаются как по рации. По этому всем в панельках лучше на пол класть ковры..
 
При любой толщине, в стандартных панельках источник шума соседи. Шумы, особенно ударные передаются как по рации. По этому всем в панельках лучше на пол класть ковры..

Это да, и с этим ничего не сделать, но любопытно же :D
 
у меня 2 и 3 комнатные квартиры в таких домах. В двушке сейчас идет ремонт. Если интересно можешь забежать посмотреть + у меня куча фоток есть в процессе ремонта. Но в принципе особо показывать рассказывать не так уж и много чего, в основном могу показать расположение распаячных коробок, места прохождения кабелей и тп. Уже сплыла куча мелочей которые сделал бы по другому ) К тому же как оказалось у меня всегда были очень тихие соседи ) А на новом месте просто жесть какая со звукоизоляцией, но мебели еще нет и новый линолеум еще не растилил, так что еще есть шанс )

Дом серийный, их вроде как 5 штук в серии, но по Харькову распространены 3 варианта. Инфа все с тех же сайтов, откуда ты и эти фото взял ) + есть различия в 111-162-2п - одни дома с газом, другие с электрическими плитами, есть разные варианты выходов на лестницу (или сразу при входе налево или перед лифтами налево)

Какие мелочи у вас всплыли не могли бы вы рассказать поподробнее
 
Вот ещё пару раскладок для этого проекта, втч для первого этажа
 

Вкладення

  • 2jB25ABrHf8.webp
    2jB25ABrHf8.webp
    46.5 КБ · Перегляди: 454
  • DRMoQTY5Y20.webp
    DRMoQTY5Y20.webp
    45.1 КБ · Перегляди: 445
  • vZ5v3-_0RgA.webp
    vZ5v3-_0RgA.webp
    30.3 КБ · Перегляди: 447
  • Це лайк!
Реакції: Ami
Re: Информация о 16-этажке

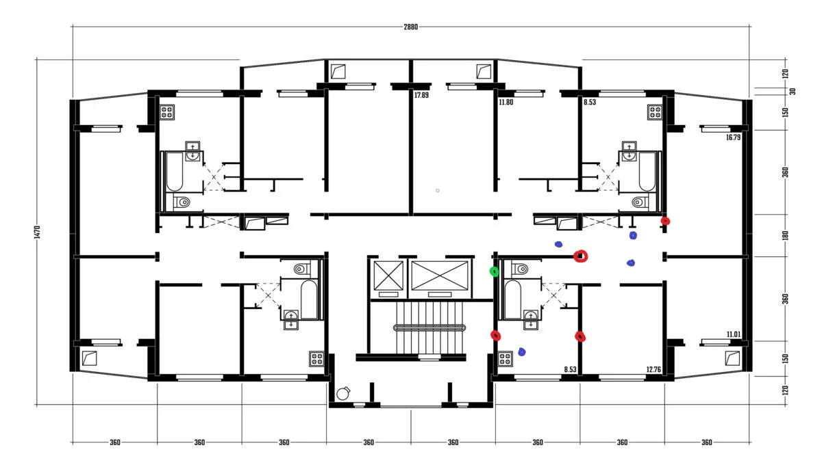
Интересует схема проводки и расположение "коробок" внутри панелей.
Из этих панелей строилось три типа домов, разные типы квартир.
В панелях есть много не задействованных каналов, коробок, мест под розетки...
Т.К. В одних квартирах использовались одни места, в других другие.
Хочу узнать их расположение в плитах.
Во-всей квартире полно подобных лунок... Но, это только то-что видно...
Красным- это коробки со-скрутками в стыках плит, между полом и потолком.
Синим-круглые лунки в полу и потолке.
Зелёным-круглые лунки в стенах под-выключатели.(не задействованные)
 

Вкладення

  • IMG_20210305_180452.webp
    IMG_20210305_180452.webp
    65.9 КБ · Перегляди: 307
  • vZ5v3-_0RgA.webp
    vZ5v3-_0RgA.webp
    32.3 КБ · Перегляди: 202
Re: Информация о 16-этажке

Ребят, а арматура на балконе в квартире №3, которая держит металлическую пожарную лестницу, не поддерживает ли половую плиту самой лоджии?
 
Назад
Зверху Знизу