Статус: Офлайн
Реєстрація: 05.06.2009
Повідом.: 105
Реєстрація: 05.06.2009
Повідом.: 105
Снос стены!
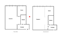
Помогите пожалуйста разобраться, является ли несущей стена, которую я хочу снести!
Квартира однокомнатная, в самой обычной хрущевке, на пятом этаже, не угловая. Дом панельный. Хочу снести стену между кухней и комнатой, объеденить их и тем самым расширить свободное пространство. А так же отхватить кусок бесполезного длиннющего коридора.
Толщина стены около 11-12 см. Она бетонная и довольно прочная.
По рисунку думаю все будет понятно. Над большим входным проемом в комнату чтото типа балки высотой 26см, и толщиной такой же как стена (подробнее на фото)
Хотелось бы услышать мнения людей, которые уже делали перепланировку такого плана в панельных однокомнатных хрущевках, или советы людей связанных с строительством непосредственно. В интернете мнения расходятся кардинально. Одни говорят что можно сносить без проблем, другие уверяют что ни в коем случае в панельной хрущевке трогать стены нельзя. Возможно фактор последнего этажа смягчает обстоятельства, т.к. надо мной нет квартир, но я не хочу бездумно рушить стены создавая аварийную обстановку для себя и соседей.
Заранее благодарю!
Помогите пожалуйста разобраться, является ли несущей стена, которую я хочу снести!
Квартира однокомнатная, в самой обычной хрущевке, на пятом этаже, не угловая. Дом панельный. Хочу снести стену между кухней и комнатой, объеденить их и тем самым расширить свободное пространство. А так же отхватить кусок бесполезного длиннющего коридора.
Толщина стены около 11-12 см. Она бетонная и довольно прочная.
По рисунку думаю все будет понятно. Над большим входным проемом в комнату чтото типа балки высотой 26см, и толщиной такой же как стена (подробнее на фото)
Хотелось бы услышать мнения людей, которые уже делали перепланировку такого плана в панельных однокомнатных хрущевках, или советы людей связанных с строительством непосредственно. В интернете мнения расходятся кардинально. Одни говорят что можно сносить без проблем, другие уверяют что ни в коем случае в панельной хрущевке трогать стены нельзя. Возможно фактор последнего этажа смягчает обстоятельства, т.к. надо мной нет квартир, но я не хочу бездумно рушить стены создавая аварийную обстановку для себя и соседей.
Заранее благодарю!


