Поедем смотреть как поставили окна )
Обязательно расскажите нам потом


И на крепления обратите внимание - в офисе обещали, что будут ставить на анкерные пластины. Но офис от стройки далеко

Перегляньте відео нижче, щоб дізнатися, як встановити наш сайт як веб-програму на головному екрані.
Замітка: This feature may not be available in some browsers.
Поедем смотреть как поставили окна )
Всем привет! Я присутствовал при установке окон в своей квартире! Окна ставили на анкерные пластины, а выходы на балкон еще крепили на турбовинты, так как они тяжелые и имеет большую площадь!!! Ну а дальше задували пеной!!!! Плюс к этому%Обязательно расскажите нам потомА то терзают смутные сомнения. На 9 и 5 этажах окна с двухсторонней ламинацией стоят - пена видна невооруженным взглядом с улицы. А вот на белых окнах выше пятого этажа пены что-то не видать даже на увеличенном фото
![]()
И на крепления обратите внимание - в офисе обещали, что будут ставить на анкерные пластины. Но офис от стройки далеко![]()
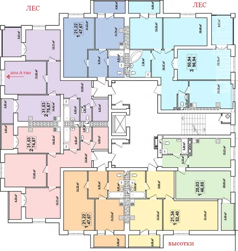
Если смотреть на планировки секции Д, то где лесная сторона?
На стройке, несмотря на субботу, работа продвигалась. За неделю явный прогресс (см. фото)
Фото 1 - секция Д - начата кладка 9го этажа
Фото 2 - секция В - остеклили. Окон нет где-то в 2х-3х квартирах на разных этажах.
Фото 3 - Секция Б - без особых внешних изменений
Фото 4 - между Б и В - активно кипит работа - ездят машины, ходят люди. Черные трубы большого диаметра были там ещё на прошлой неделе, пока на месте. Обратили внимание на желтую трубу (газ) - на прошлой неделе или не было или не заметили.
Фото 5 - секция Г. Поштукатурена стена. Дело движется крайне медленно - возможно, потому что очень качественно?
Фото 6 - траншея вокруг дома Г.
живу в съемной квартире в доме напротив
Хочется каждый день проходя мимо стройки наглядно видеть прогресс
я с младшенькой (в коляске) проезжал мимо домов...и видел
Если смотреть на планировки секции Д, то где лесная сторона?
На фото все углы с лоджиями...открытыми а на плане балконы!!!Вроде бы соответствует - только развернуть надо
Интересно, лестницы к каждому дому будут или "настоящие герои всегда идут в обход" ?
Я имею ввиду лоджии на углах дома ну или их можно назвать террасами а на плане там балконы (или лоджии)Вроде бы всё сходится с планом (см. прикрепл. фот.)
Сейчас там работаю 2 крана и куча каменщиков...так что реально могут сдать в конце этого года!!!!В конце весны - начале лета, когда процесс был в самом начале, в ЖС говорили, что Д сдадут в декабре 2013. В начале осени на сайтах АН появилась информация, что Д сдадут в 4 кв. 2014.
Не переживайте, в декабре 13. Не зря они его так гонятА когда сдача дома Д известно?
Я обитаю возле Тополька!!! Просто в лесу приятно с малышкой гулять!!!
Вам назначат день когда прийти в Азово-Черноморскую. Приходете, читаете договор, подписываете, идете к нотариусу, там подписываете с ЖС договор. Идете в банк оплачиваете. ВсеКто покупал квартиру в этом доме, расскажите подробно, как это происходит?
Устанавливают, плинирую менять на биметалл и убирать в ниши1. радиаторы-батареи устанавливаю или это тоже сами-сами?
Догаваривался с Тимуром когда еще в Июне начинали утеплять. Потом заглохло. Они хотят ту-же цену как и по городу, поэтому можна в любой момент с другими договориться2. И еще кто-нибудь договаривался утеплять балкон снаружи? И с кем?
1.Радиаторы-батареи будут стоять!!И я на Топольке))))
Про Д говорили, что в конце 2014 года.
А у меня вопрос к сведущим:
1. радиаторы-батареи устанавливаю или это тоже сами-сами?
2. И еще кто-нибудь договаривался утеплять балкон снаружи? И с кем?
3. Где можно узнать прочитать про установку гидробоксов с низким поддоном?
Менять на биметал не желательно...так как будут стоять стальные радиаторы "КОРАДО" они вроде неплохо работают....а биметал будет иметь худшую теплоотдачу...плюс могут быть проблемы если внутренняя поверхность не качественная то возможно откалывание частиц которые могут повредить более тонкие стенки радиаторов "Корадо"!!!Устанавливают, плинирую менять на биметалл и убирать в ниши
Ну насчет теплоотдачи я бы поспорил это раз, во вторых меня они по толщине не устраивают и по внешнему виду тоже не нравятся. Откалываться, повредит... Это что ж за батареи такие, на которые дышать нельзя? Вы вообще видели какая вода течет по трубам? Я после замены смесителя задолбался чистить сеточку. Поитогу вынял её совсем, а Вы тут про мелкие частицы. Там при первом пуске такой мусор по системме полетит, что "нежные стенки" развалятся по Вашим словам. Ну что за бредни?Менять на биметал не желательно...так как будут стоять стальные радиаторы "КОРАДО" они вроде неплохо работают....а биметал будет иметь худшую теплоотдачу...плюс могут быть проблемы если внутренняя поверхность не качественная то возможно откалывание частиц которые могут повредить более тонкие стенки радиаторов "Корадо"!!!
То есть устанавливать в одну систему разные радиаторы не желательно!!!
Ну насчет теплоотдачи я бы поспорил это раз, во вторых меня они по толщине не устраивают и по внешнему виду тоже не нравятся. Откалываться, повредит... Это что ж за батареи такие, на которые дышать нельзя? Вы вообще видели какая вода течет по трубам? Я после замены смесителя задолбался чистить сеточку. Поитогу вынял её совсем, а Вы тут про мелкие частицы. Там при первом пуске такой мусор по системме полетит, что "нежные стенки" развалятся по Вашим словам. Ну что за бредни?
А иметь под окном невнятную байду, которая еще и место занимает чего-то не очень хочется. А как оттуда пыль доставать вообще не понятно. Спасибо, но я луче поменяю